
129㎡輕奢 | 表里優雅,光蘊生活

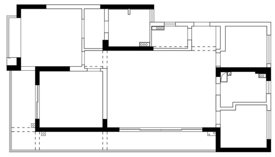
項目信息 PROJECT INFORMATION 地址/ 濱湖天地 城市/ 中國 杭州 戶型/ 三室兩廳 面積/ 129㎡ 風格/ 現代輕奢 設計施工/ 浙江南鴻裝飾 作品前言 ABOUT HOME 本案是一套精裝房全改項目。業主有著豐富的人生閱歷,亦是極為注重生活品質之人,遂選擇了輕奢風,來印刻與居者氣度相匹配的居室內涵。 戶型拆改后,公區域包進陽臺,呈現大尺度的開闊視野,藍天白云映入眼簾,頃刻收獲澄澈心境。室內用木、石、皮革等多重元素混合搭配,進一步提升品味感和精致度。 戶型設計 LAYOUT DESIGN 原戶型:中廚面積小,陽臺面積大,公區域并不通透。 設計改動: ①陽臺移門拆除,將陽臺包進,釋放客餐廳的空間感。 ②原書房與廚房整合為新的面積更大的中廚空間,解放出更多操作余裕。 ③主臥在主衛和睡眠區之間設計一字型衣櫥,避免了床頭正對衛生間。 ④次臥包入西陽臺并添置跑步機,滿足居者日常運動需求。 實景呈現 CASE APPRECIATION No.1 客廳 重構客餐廳與陽臺的結構關系之后,區域聯結成一個通透開放的生活與社交主場,不同情景皆能自由切換。 石材、皮藝、木飾、金屬等多種材質混搭,打造摩登又沉穩的氣質。深淺色和諧配比,空間在實用主義和藝術美感之間尋覓到恰當的平衡。 電視墻搭配電子壁爐,仿真火焰帶來視覺暖意,形塑擬真的環境效果,精致不言而喻。 自然質樸的木飾面包裹,營造溫暖而松弛的氛圍。結合格柵造型與燈線,進一步增強格調。 落地窗解放高層視野,舉目即是青山湖公園的優美風光,坐于休閑沙發,在寧靜的午后,盡情享受生活饋贈的美好。 No.2 餐廳 細膩的選材,優雅的布設,呈現頗具高級氛圍的餐廳場域,驚艷時光更溫柔了歲月。 餐廚用移門相隔,解決油煙的煩惱,隨心自由烹炒。移門旁嵌入透明酒柜,立面齊整又方便存放酒水。 空間用低飽和度色彩調配出和諧視感,方正輪廓大理石餐桌搭配直排水晶燈,展現精致又優雅的美學。 No.3 臥室 主臥用木色搭配輕奢感的愛馬仕橙和清淺雅致的國風青,視線在深淺中來回躍動,精巧的色彩藝術構筑起一方愜意天地。 衣柜揉入有色玻璃材質,通透視感更方便取放衣物,同時提升立面層次。柜面選擇與背景墻相近的色調,視線變得連貫統一。 愛馬仕橙作為輕奢風的經典配色,在區域中牢牢奠定了重心。一盞國風小吊燈裝飾體現人文的感知和東方的意境,拓展人與空間對話的維度。 次臥將含蓄之筆落于日常,淺色形制賦予空間一種時光變緩的柔潤知覺,恰如其分地包裹情緒,紓解疲憊。 No.4 衛生間 大面灰色光潔瓷磚打磨現代感分明的衛浴空間,在優雅與和諧中營造強烈又獨特的視覺觀感,以及無比舒適的沉浸體驗。

















免費
免費申請戶型規劃
專屬設計師免費1對1全程服務
已經有3768人申請
24小時免費咨詢電話
400-8800-618
你家預算
108080元