
新作首發 | 讓時光駐足,靜聽歲月清歌
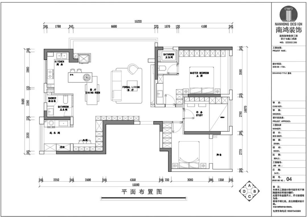
項目信息 / 地址:時代濱江悅 城市:中國 杭州 戶型:三室兩廳 面積:135㎡ 風格:極簡/輕侘寂 設計施工:浙江南鴻裝飾 且聽風吟 / 避不開車水馬龍的日子 便于此心間修籬 本案為一家三口居住,女兒目前上高中,只在休息日回來。 女業主喜愛現代極簡,希望空間是干凈、沉穩。平常使用的家電比較多,所以需要提前規劃好位置。另外業主很好客,經常會有朋友來家里聚餐,客餐廳公區域必須寬敞大氣。 色系上以奶白、原木色和水泥色為主,自然的張力與藝術美學的意趣很好結合,干凈清明的內里環境加上寬廣的窗外風景,讓家愈發迷人。 這個項目整體做下來還是有蠻多曲折的。最開始業主找風水先生測量過屋子,想把廚房和衛生間的位置對調,再把窗戶封起來,后來經過反復溝通,廚衛還是保留在原位,不過窗戶是封掉了,所以需要用設計來彌補采光。 還有,原本陽臺是不允許包進的,后來等客廳電視背景墻做好之后情況發生轉變,所以陽臺部分又有加半截電視背景進去。 我個人對這套作品最滿意的地方在于空間整體的平衡,穩中求勝的色調搭配以及極簡工藝的處理,將那種無拘無束非常自在的感覺很好地表達了出來~ #戶型改造分析 優點:原戶型客餐廳區域比較開闊,房屋結構算是方正,采光優秀。 缺點:空間結構上的梁比較多,衛生間的門對著餐桌等。 設計改造: ①廚房與餐廳打通,餐廚連接成開放式布局,并壓縮客衛空間來增大面積,增加采光。 ②餐廳增加島臺,并將中心偏移,避開客衛的門。 ③主衛做干濕分離,臺盆區放到主臥進門處,并以玻璃隔斷的形式讓空間更加通透。 01. 客廳 Living Room 晴好的天氣,明媚的光經由輕盈的簾幔灑進室內,讓空間幻化出清淺、綿長的慢生活圖景。 客廳的基底是純凈的奶白,豆腐塊狀的布藝沙發搭配烤漆面的異形茶幾,打造沉浸式高級感。 背景墻做優美的白色弧形面,空間在獲得藝術張力的同時,變得立體而生動。溫暖的人造光源均勻散落在墻和頂,豐富室內光影的變化體驗。 家具的線條鮮明,空間輪廓簡潔明朗,增添上自然植株的點綴,呈現樸拙、謙卑又內含溫情的姿態。看似是沒有溫度的外表,卻充滿了讓人感動的細膩與溫暖。 02. 餐廚空間 Dining Room & Kitchen 餐廳用藤編餐椅、長凳搭配玻璃落腳的原木餐桌,多變的材質與形態進一步豐富空間結構。島臺規劃有儲藏區域,連接餐桌的地方預留了插座,對于有頻繁性多人聚餐的家庭來說,這是必不可少的。過道還嵌入冰箱,節省來去的動線。 原木與藤編是作為一對擁有相同屬性的默契搭檔,是極簡、侘寂中的常客,它們帶著生命的韌性,賦予俗世柴米油鹽以最親切的自然氣息。 西廚區不浪費轉角的空間,合理設計尺寸,延伸出閱讀休閑的功能,柔軟的光暈從書柜內透出,顯得沉穩雅致。 廚房在符合人體工學的前提下設計出流暢的烹飪動線,頂柜、地柜、島臺,一應俱全,肌理感的互動豐富空間層次。 03. 臥室 Bedroom 主臥空間的構筑亦秉承全屋簡單有細節的思路,灰色的床品結合溫潤木飾面半墻,打造靜謐、安穩的睡眠環境。墻面融入向上拉伸的格柵元素,流暢線條升華空間韻律。 床尾在恰好的尺度中構建功能儲納區,與墻體默契結合,為休憩空間留下平整舒心的觀感。從淺色系中析出的恬謐因子,在空氣中慢慢釋放著撫定心靈的溫柔能量。 臥室光源的設計亦遵循公區域的處理,柔和均衡的光線幫助主人迅速入眠。睡眠區與衛浴區似隔未隔,玻璃的特性讓光線往來無礙,營造呼吸感十足的通透氛圍。 04. 書房 Study 書房容納閱讀辦公、休息、收納等多重功能,落地窗攬進外部風景,為時光的悠然漫渡,寫下美好的注腳。 05. 衛生間 Bathroom 純粹、自在、舒適,在物理空間與人所觸碰的每個界面,設計都全力呈現讓身心放松的體驗。尺度奢華的極簡質感衛浴設計,清晰地表明主人對品質生活的追求。





























免費
免費申請戶型規劃
專屬設計師免費1對1全程服務
已經有3767人申請
24小時免費咨詢電話
400-8800-618
你家預算
108080元