
三堡南苑 | 126方現代主義,實用至上,大氣從容

本案常住人口為四人,夫妻二人和兩個女兒,選擇了簡單大氣的現代風格。
在這套126方的空間里,整體保持現代風的格調,以高級灰為主色,加入許多個性色彩點綴,帶來一種簡約利落的居住氛圍,讓生活充滿樂趣與休閑的體驗。


? 案例信息
地址:三堡南苑
戶型:三室兩廳
面積:126㎡
風格:現代風格
設計施工:浙江南鴻裝飾
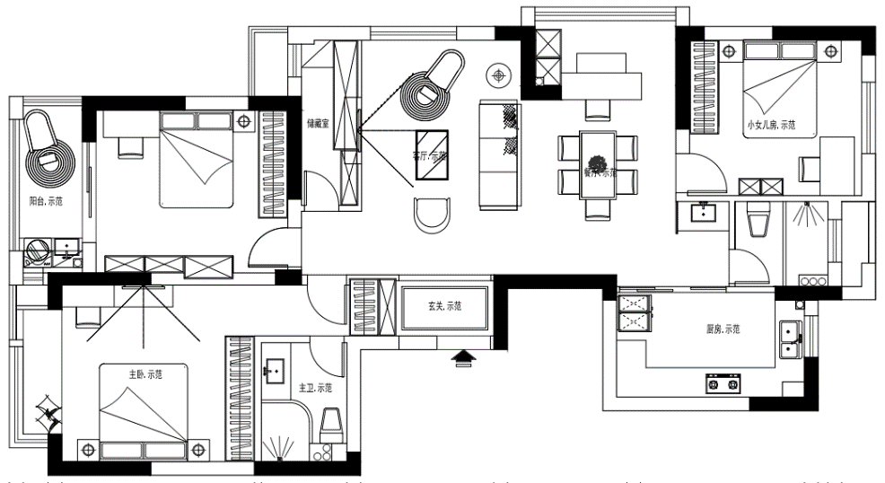
? 戶型分析

餐廳擴進了西面陽臺增加面積;廚房門洞擴大;客廳騰出一個儲物間的區域以增加儲藏空間。


& Entrance
戶型玄關不大,但基本功能還是不能少的,便做了一組白色的置頂鞋柜來滿足入戶的收納需求。

步入客廳,高級灰的空間頗為沉靜,軟裝上的色彩搭配也顯得和諧而不失層次,皮革與絨布的材質襯出了一些輕奢的意味。

干凈的魚肚白巖板做一體式電視背景墻,黑白塊面對比清晰,上方的無主燈頂面嵌入6毫米黑色金屬線條進行修飾,凸顯立體感。

舒適沉穩是這里的主調,古銅色的沙發后留出寬敞動線,開放性場域讓空間互動感更加強烈。


客餐廳布局緊湊,彼此相連,進一步放大空間感,也使動線更加流暢。

纖細的餐桌椅體態輕盈,是最適合現代風格的造型。右側的門扇后為兒童房的區域。

餐廳包進來的西面陽臺處定制一組玄關同款柜子,增強餐區收納。

廚房,常規的U型布局,一整排的吊柜設計讓廚區收納輕輕松松。


主臥背景墻采用藏青色墻布裝飾,整體配色較深,為的是營造適合入睡的寧靜氛圍。

次臥應用低飽和度的色彩搭配,舒緩平和而又充滿溫度。

床尾的收納區,封閉式柜體與涂刷藍漆的開放格結合,視覺上的跳躍感帶來活潑的趣味。

兒童房鋪貼云朵壁紙,黃藍組合的窗簾彰顯活力,蘋果狀的吊燈也充滿著童趣。

公共衛生間做了干濕分離,黑色的臺盆柜、五金件凸顯質感。干區位于餐區旁,也方便進餐前與進餐后的手部清潔。
主衛鋪貼統一的灰色墻地磚,保證區域視感一致,玻璃淋浴房實現了簡單的干濕分離。
上一篇:中廚?西廚? 我全都要!
免費
免費申請戶型規劃
專屬設計師免費1對1全程服務
已經有3780人申請
24小時免費咨詢電話
400-8800-618
你家預算
108080元