
締壹城 | 時尚的簡約之家,奏響美滿生活樂章

// 項目信息 //
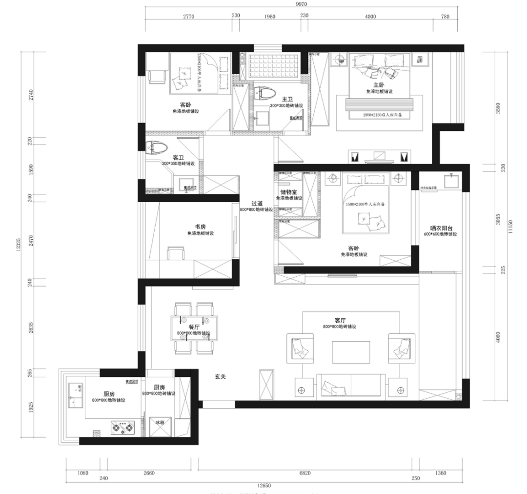
地址 / 締壹城 戶型 / 四室兩廳 面積 / 135㎡ 風格 / 現代風格 設計施工 / 浙江南鴻裝飾 本案為寧波締壹城現代風格作品。業主是一對年輕夫妻,家里有一雙尚年幼的兒女,他們希望這個新家能融合許多時尚前衛的小細節。 本案的材質選用有大理石磚、木飾面、不銹鋼條、硅藻泥等,配以大量輔助光源來打造業主的理想居所。 戶 型 圖 客 廳 Living Room 客廳足夠簡潔敞亮,陽臺被包進來做抬高處理,成為一處不錯的休閑場所。家具挑選得都較為低矮,無形中拉伸了層高,也讓空間更為通透。 電視背景墻選用爵士白大板磚背景結合金色不銹鋼打造的開放柜,個性突出,木質的地柜與木格柵元素摻雜進溫潤的視感,平衡了冷暖溫度。 三幅組合裝飾畫懸掛于沙發背景墻,干凈明晰,不著多余的色彩,挺拔的綠植安靜地立于一側,默默為空間注入清新之感,灰色主沙發完美契合基調。 客廳望向餐廳。頂部是無主燈設計,燈光也要貼合現代風格的簡潔特征。 餐 廳 Dining Room 餐廳,纖薄的石材桌面搭配簡約風的灰色餐椅,桌椅低調至簡,再配上白紗簾,頗有清風徐來的唯美之意。 廚 房 Kitchen 廚房面積雖有限,使用起來可一點兒不會拘束,L型的結構最大化利用了空間又讓動線足夠流暢。深灰的櫥柜搭配黑色拉手,簡潔又大氣。 臥 室 Bedroom 將飄窗擴進后,主臥的采光與視野變得更好,整體使用白與灰的配色,溫柔寧靜。如此賞心悅目的臥室,可以讓人快速放松身心,卸去疲憊。 兒童房用清新的藍調布置背景,可愛的小動物圖案契合孩子幼小純真的心性,整體色彩沒有艷麗的感覺,卻足夠有趣分明。 書 房 Study 書房的布置比較簡單,以實用為主,柜子均是現場制作。木材細膩的光澤感,仿佛天生就自帶了一層柔光濾鏡。 衛 生 間 Toilet 兩個衛生間在風格上是統一的,黑色的粗線條邊框牢牢占住視線,鏡子旁的開放式層架、墻上的壁龕及懸空的浴室柜設計,讓空間實用又美觀。














免費
免費申請戶型規劃
專屬設計師免費1對1全程服務
已經有3780人申請
24小時免費咨詢電話
400-8800-618
你家預算
108080元