
銀億東岸 | 現代輕奢結合中式情懷,家的姿態怎能千篇一律

// 項目信息 //
地址 / 銀億東岸
戶型 / 四室兩廳
面積 / 198㎡
風格 / 現代輕奢
設計施工 / 浙江南鴻裝飾
本案為寧波銀億東岸現代輕奢風格的作品,業主家有一對龍鳳胎寶寶,功能上做了三個臥室和一個書房,每一間臥室的家具,配飾和色彩,都反映了居住者的不同喜好,可以說各有亮點。
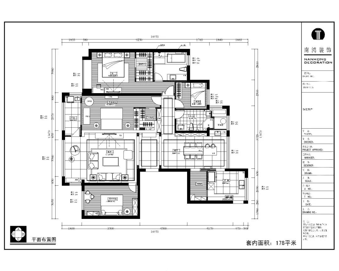
戶 型 圖

玄 關

玄關作為入戶的第一眼,設計師在此處就將全室的基調牢牢定下,墻與頂面以金色的不銹鋼線條相連而形成整體,視線感拉伸出去,尤為大氣。
客 廳


簡單直爽的硬裝線條勾勒出這個方正雅適的客廳空間,中國風的沙發背景墻與大理石的電視背景相對而居,空間氛圍巧妙地游走在現代與古典的平衡線上,達成中庸之美。


家具用料完美兼容了質樸與奢華的氣質,大理石臺面的茶幾與頂上繁復的吊燈呼應,搭配金屬質感與清新綠植的點綴,營造出優雅端莊的會客環境。

熒熒暖光,照亮溫柔歲月。

客廳望向餐廳??臻g開敞,通透感強,灰咖色的木飾面貫穿始終,穩重而又不失時尚感。
餐 廳


餐廳處打造了許多兼具展示與收納之用的柜子,素雅的色彩與客廳一脈相承,光影、材質在此處交匯,撥動出一曲閑情小調。
廚 房

銀色的主調讓這方廚余之地更顯光潔清爽,深灰的臺面也讓日常的清潔工作輕松了不少。
過 道

過道設計隔板型裝飾柜,視覺上加寬了兩側的距離,也讓業主的收藏品多了一處展示的地方。
主 臥


主臥背景墻選用淺色的硬包內嵌金屬條,軟裝上則應業主的需求,布置得相當古色古香,唯美的東方韻味,置身其中,讓人只想隔絕一切喧囂,回歸最真實的恬淡心境。
兒 童 房


兒童房一。給小公主布置的房間,無論是粉色樹屋小床,還是鉛筆狀的掛衣桿,亦或是窗簾、背景墻、床頭柜、地毯,都是童趣滿滿的選擇,想必一定能成為孩子最愛的休憩場所。

兒童房二。另一間兒童房的布置也是充滿了孩子喜愛的各種元素,色彩活潑,另外,為滿足孩子未來更多的成長需求,設計師也做了一定的留白空間。
衛 生 間

衛生間內部狹長,長長的浴室柜能容納更多的物品,墻面上方的壁燈恰似一盞燭臺,設計得頗為新穎,臺上盆與金屬把手的顏值也很高,美觀且耐看。
上一篇:卡座——漂亮的不像實力派
免費
免費申請戶型規劃
專屬設計師免費1對1全程服務
已經有3780人申請
24小時免費咨詢電話
400-8800-618
你家預算
108080元