
豐潭欣苑 | 人間有味是清歡
細雨斜風作曉寒,淡煙疏柳媚晴灘。入淮清洛漸漫漫。
雪沫乳花浮午盞,蓼茸蒿筍試春盤。人間有味是清歡。
————
蘇軾 · 《浣溪沙》

// 項目信息 //
地址 / 豐潭欣苑
戶型 / 四室兩廳
面積 / 150㎡
風格 / 現代風格
設計施工 / 浙江南鴻裝飾
生活的底色,會在歲月的流逝中緩緩流露真顏。年少時對夢想,對遠方的向往,到最后,也抵不過清粥小菜暖茶香。
蘇軾所言“人間有味是清歡”,生活是如此,家居設計也是如此。一個真正契合生活的設計,恰好是讓功能與美感水到渠成。
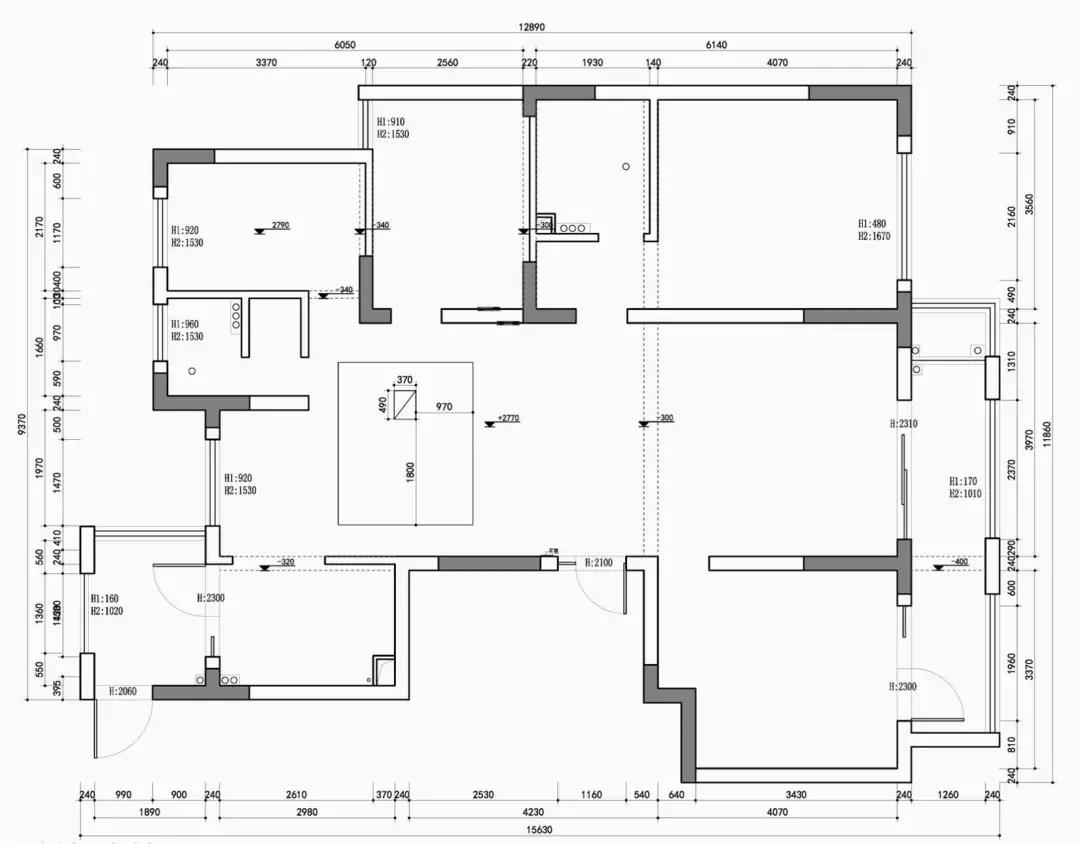
戶 型 圖


設計說明:
1、保留三個房間一個書房;
2、擴充廚房,處理電器擺放及操作流線,解決消防門的問題;
3、優化動線。
玄 關 Hallway

玄關雖沒有開辟專門的區域,實用性可一點兒也不差。門口安放成品鞋柜與換鞋凳,正對口則定制了通頂玄關柜,功能完善。
客 廳 Living Room

我們以低飽和的硬裝搭配高飽和軟裝來豐富客廳空間的色彩層次,藍與紅的碰撞釋放出活力因子,并點綴出優雅的格調。


無論是藍色的布藝沙發,還是暗紅的細框畫,都予人強烈的視覺沖擊感,一側的金屬落地燈輕輕探出頭來,仿佛不經意間摻進了這份藝術氣質中,俏皮可愛。

溫潤的木飾面板是現代風格的???,在這里也被廣泛使用。沙發背景處植入隱形門,增強整體性。

▲客廳細節
餐 廳 Dining Room

餐廳與廚房以清玻門相隔,通透感十足,沿窗打造一組餐邊柜增強收納。光影傳遞進來,灑落生活的溫暖。

細腿橡木餐桌搭配工業風鐵藝真皮餐椅,休閑舒適的氣息僅從各種材質細節中便能感受得到。

餐廳看向廚房視角。富足的生活并不在物質的堆砌,而往往是感官體驗上的一種安心與自得。
廚 房 Kitchen

廚房光線明亮,墻面用淺色的花磚錯落鋪貼,有趣又有新意,木色的櫥柜表面光滑,質感十足。
臥 室 Bedroom

主臥以藏青色的墻布裝飾背景,灰色的衣柜搭配線性把手,簡約設計充分彰顯現代風的內涵。

清竣的實木床體擁有歲月雕刻的斑駁紋理,安睡的臥房中,總有一處要個性鮮明。

次臥以不同階度的灰色打造,色調統一的同時又巧妙劃出了層次,一角黑白塊樣式的小幾替代了床頭柜,是個小亮點。


▲次臥細節
免費
免費申請戶型規劃
專屬設計師免費1對1全程服務
已經有3780人申請
24小時免費咨詢電話
400-8800-618
你家預算
108080元