
102㎡精裝改造 | 奶油風邂逅極簡主義,每一平都有奶香味道!

本期要為大家分享一套102方奶油風的精裝房設計。
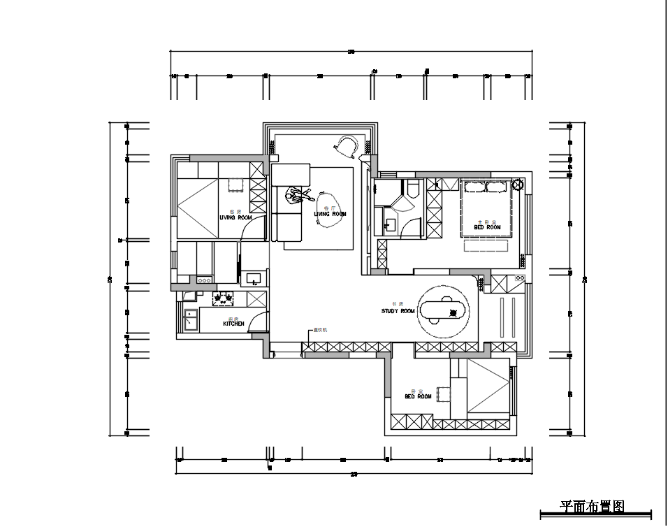
先來看看改造前的樣子吧: 唔,果然是毫無亮色的精裝交付房哪... 莫慌。 Let's 施加奶油風的魅力魔法,給家來個大變身! 整體極簡的設計,與時下流行的奶油風相結合,讓居室既通透簡潔,又溫馨耐看,頂面無主燈設計進一步提升氛圍感,這樣一種克制而又充滿溫度的設計美學,將三口之家親密的感情巧妙融入到空間中,從外到里營造一個溫暖知性的家。 ▲平面方案 開放式的布局、清淺的色調與柔光磚的通鋪,為空間筑下溫暖干凈的基調。弧線元素從陽臺埡口一路到電視背景墻,形成柔和的視覺連貫性。奶油風的軟裝選品,在光線下折射出細膩的層次。 電視墻接續極簡語言,大面積留白做基底,通過弧形曲面、懸浮結構與體塊分割的組合,構建出輕盈而優雅的空間表情。 在輕巧中展現層次的現代設計,凸顯奶油風特有治愈氛圍的同時,大大拉升了整體質感——沒有冗余裝飾,僅以造型本身的流動感與虛實對比,在利落簡潔的結構中收獲滿滿的張力。 屋內陳設不多,透過周到、精致的細節賦予空間以質感。奶油風的魅力,恰是在于用最溫柔的語言,打造出治愈又高效的生活場景。 書房靠近陽臺,寬敞明亮,背景墻采用木制擱板與弧形面一體式設計,搭配暖調燈帶,勾勒立體線條感與材質的溫潤肌理。午后的陽光溜進來,悠閑喝一杯下午茶看一看書,感受幸福自在的氣息~ 主臥背景墻以半墻木飾面加燈線造型,為空間注入恰到好處的活力。自然光透過落地窗灑入,與室內暖光交織出溫和的層次。 兒童房做了十分高效的整合型空間設計,榻榻米+衣柜+轉角書桌+吊柜,環抱式的布局既保證功能完備,又為孩子留出了寬敞舒適的學習和活動空間。 公衛打造干濕分離設計,平拱形門洞延伸出弧形半墻,融塑一體,視線柔和順暢,長虹玻璃隔門令光線在干濕區自由流動,既輕盈劃分功能,又維持了空間的呼吸感。 鏡柜+臺盆柜能讓洗漱區始終保持清爽,整體材質的選擇兼顧了防滑與耐污性,讓美感與實用無縫銜接。 P.I. 項目信息 項目名稱:星央悅府 設計風格:奶油風 項目類型:三室兩廳 項目地點:中國·杭州 項目面積:102㎡ 套餐類型:精裝房改造 項目服務:設計·施工·硬裝·軟裝 全案設計 設計單位:浙江南鴻裝飾 施工單位:浙江南鴻裝飾


















免費
免費申請戶型規劃
專屬設計師免費1對1全程服務
已經有3762人申請
24小時免費咨詢電話
400-8800-618
你家預算
108080元