
新作 | 明媚優雅的“藝術系”住宅,一如那燦爛的人生!

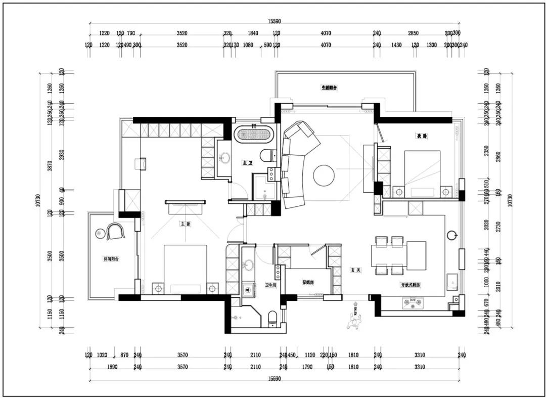
這是一處完全依據業主喜好而鋪展的隨性自在的居所, 保留了原始戶型中的三個房間,飄窗敲掉, 公共區域盡可能聯結在一起,全方位優化動線。 這也是一處功能與顏值并存的美麗藝術住宅, 意式混搭輕奢、法式, 在裝飾的質感上處理細膩,多種材質糅合, 塑造融尺度、溫度和氣度于一體的明媚優雅形態。 戶型改造 // 廚房和餐廳中間的墻體敲掉做了環繞型動線,餐桌與島臺一體式設計,提升餐廚區的空間利用率; 主臥開間做了套房,設計出開闊的衣帽間,主衛也擴大了面積,能同時容下浴缸和淋浴房,大大增強功能性。 PART.1 客廳 客廳通鋪深灰色的地磚,頂部做無主燈設計,清爽干凈的硬裝結構呈現明亮通透的居室氛圍。陽臺作為一個小花園使用,讓居室連接自然,詩意慢慢流淌入室。 輕透的白色夢幻簾在日光的涂染下展露著朦朧的美感,室內米白色的皮藝沙發搭配寶格麗輕奢風茶幾,進一步交融出優雅迷人的氣質。質感石材和玻璃覆蓋出空間的考究與精致,打造出了一個豐滿靈動的精神場所。 墻面穿插木作體塊和細膩的木格柵線條,傳達溫潤而從容的情感。隱形門的設計讓通往房間的入口完美“消失”在視線中,為空間保留完整純粹的視覺。 PART.2 餐廳 公共區域全面打開,客餐廚的動線彼此流通,空間與人也維持著最為便捷和融洽的互動模式。 餐廚結合,并使用島臺+餐桌的一體化形式; 輕奢巖板島臺設計獨特,加入了壁爐和燈光,還有實用的小水槽,頗具張力和個性的外型塑造出品質感、儀式感,讓平凡的生活也充滿了情趣! PART.3 廚房 夫妻二人都熱愛并享受著每一次烹飪的過程,廚房在改造之后,也擁有了寬綽的操作空間與儲物空間??鞠?、冰箱、電磁爐等常用電器有序嵌入到櫥柜內,讓廚房有了更整潔的感受。 PART.4 臥室 主臥包容有豐富的浪漫法式元素,子母門、護墻板與巖板結合的背景墻、水晶吊燈、石膏雕花,不同材質和造型間的對話,搭配平和的色彩搭配,打造出別樣的視覺層次,也讓空間氛圍趨向溫柔、繾綣~ 主臥套房集衣帽間、梳妝臺、睡眠區、衛生間于一體,凝練的家居動線,輕松實現便捷舒適現代生活。 精致舒適的生活怎么少得了一個大大的衣帽間呢!功能與美學在此無縫銜接,汲取法式的自由浪漫精神,構筑一方優雅的換衣、梳妝空間。 衣帽間還加入了大的鏡面,有效擴展了空間的尺度,也能方便主人隨時檢查自己的妝容、著裝。 次臥同樣擁有溫柔甜美的色調,硬包背景融入巖板材質,整體簡潔時尚的設計,帶給人寧靜安穩的幸福感受。 PART.5 衛生間 衛浴空間用淺色的墻地磚鋪墊明亮大方的基調,鵝蛋造型的浴缸搭配小巧圓潤的球形坐便器,空間氣質變得愈加可愛,玫瑰金框的玻璃淋浴房也盡顯雅奢氣派。 | 項目信息 | 地址:金色黎明 城市:中國 杭州 戶型:三室兩廳 面積:136㎡ 風格:混搭 設計施工:浙江南鴻裝飾 - NICEHOME DESIGN - 實現家的所有美好




















免費
免費申請戶型規劃
專屬設計師免費1對1全程服務
已經有3768人申請
24小時免費咨詢電話
400-8800-618
你家預算
108080元