
【西溪公館】以美式為調,彈奏復古的樂章

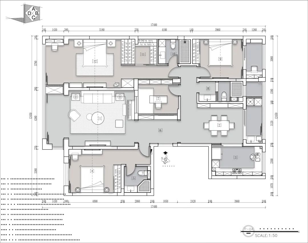
項目信息 / 地址:西溪公館 城市:中國 杭州 戶型:四室兩廳 面積:188㎡ 風格:簡美 設計施工:浙江南鴻裝飾 本案是一套簡美風格的四室設計,整體以現代的簡潔硬裝為基礎,加入了復古調的精致裝飾細節,以及女主人喜愛的弧形元素,營造一個穩重優雅又是清新文藝的居住環境。 玄關 Hallway | 入戶門廳設計文藝風的端景,加上一盞精致小吊燈,整體復古的感覺與兩側的拱形門可謂相得益彰,端莊嫻雅,每個細節都透露著生動和多情。 客廳 Living Room | 空間的基底是明凈的淺色,搭配沉穩的木色、棕色家具,點綴上清爽的藍和綠植花束,呈現出典雅又閑適的家居氛圍。陽光自窗紗灑進室內,溫柔地抵觸每個角落。黑色鋼琴被安置在拱形窗扇之下,成就古典氣質與居者喜好的完美結合,帶來更多松弛、愉悅的居家體驗。 古典主義的對稱與秩序在空間隨處可見,溫厚的色彩沉淀出歲月的質感,給予生活最自然和細膩的舒適。 餐廳 Dining Room | 餐廳延續自在清新的居室氛圍,木質餐桌椅與奶白色的餐邊柜相搭配,柴米油鹽的平凡日子亦有幸福綿長。 臥室 Bedroom | 沉穩華貴而又頗具浪漫感的主臥空間,背景墻的色彩清新明快,柜體家具則莊重內斂,明暗、濃淡對比之間,充分演繹美式的多元性和包容性。 青少年房則用米灰和淺蘭色搭建了一個更加柔和、清新的休憩空間,營造出舒適愜意的休閑氛圍。
















免費
免費申請戶型規劃
專屬設計師免費1對1全程服務
已經有3768人申請
24小時免費咨詢電話
400-8800-618
你家預算
108080元